Foment Cultural i Artístic

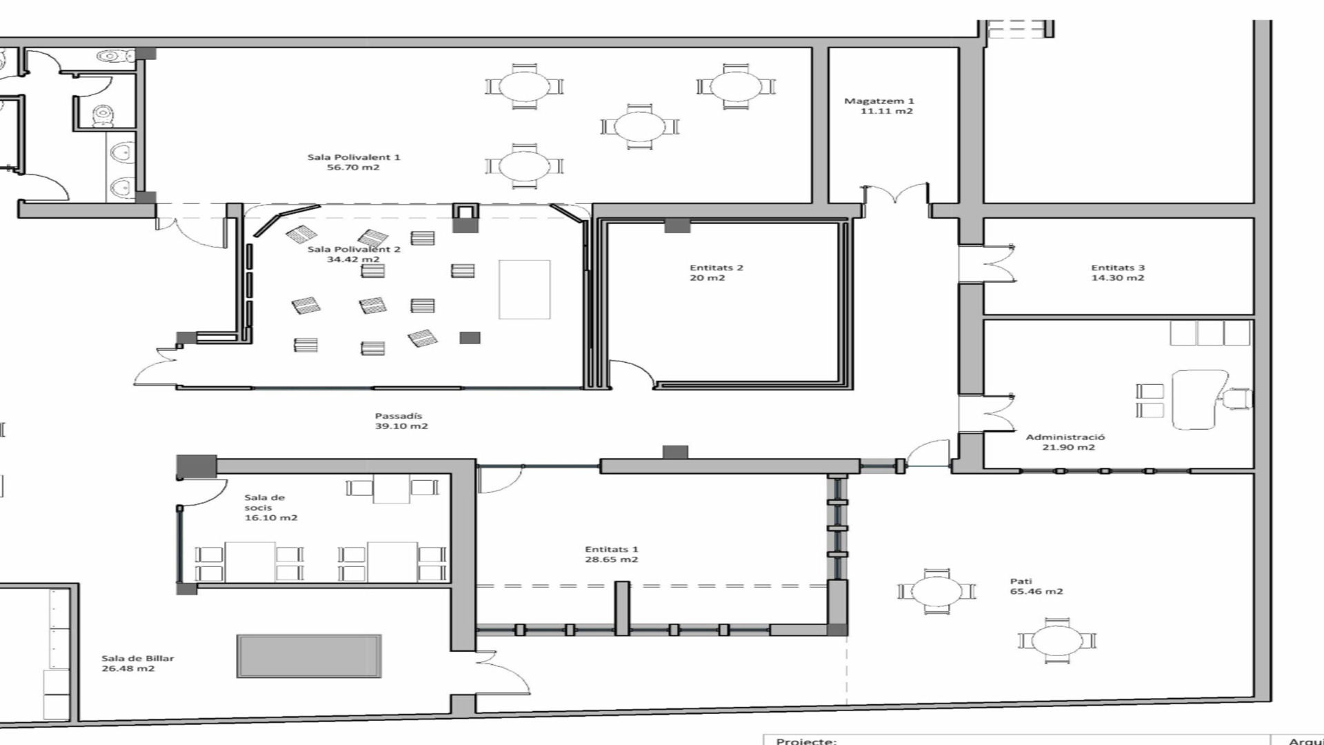
La planta baixa del local és un espai amb poca il·luminació, que s’obre a un petit pati posterior. Els espais interiors estan condicionats als murs estructurals i a la rigidesa espacial que imposa.

La proposta s’enfoca en l’eliminació d’uns certs murs, mitjançant reforços estructurals per a deixar espais diàfans de planta lliure que permetin el pas d’il·luminació provinent des del pati.

Es prevee una connexió més directa amb el Bar per a poder integrar l’interior de l’edifici amb una zona exterior, així mateix pugui tenir una relació amb l’interior, des del Bar.